Строительство бассейнов в Новосибиске. Строительство морозоустойчивых бассейнов. Мастерская Арт-Студия

На главную
Строительство бассейнов в Новосибирске

Архитектура и бассейны

Строительство террас, веранд, павильонов

Бассейны из полипропилена

Оборудование для бассейнов

Фильтры / Фильтровальное оборудование

Насосы / Насосное оборудование

Подогрев воды / Теплообменники, водонагреватели

Теплообменники

Электронагреватели


Закладные детали для бассейнов

Скиммеры

Форсунки


Лестницы и поручни

Освещение для бассейнов

Трубы и фитинги из ПВХ

Пленка для бассейнов

Сборно-разборные бассейны

Донные очистители


Панели управления

Химия для бассейнов

Обеззараживание воды

Осушители воздуха

Дозаторы, емкости для реагентов

Сматывающие устройства

Аттракционы

Оборудование для соревнований

СПА гидромассажные бассейны скиммерные

СПА гидромассажные бассейны переливные

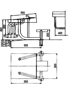
Переливной лоток

Павильоны для бассейнов

Водоподготовка

Очистка воды озоном

Фонтаны и пруды

Пленка для водоемов

Насадки для фонтанов

Садовые фонтаны

Подсветка для фонтанов

Водяные лилии (нимфеи)

Химия для прудов


Отделка бассейнов керамической плиткой, мозаикой, террасной доской

Террасная доска (декинг)

Плитка для бассейнов

Плитка вокруг бассейнов

Панно из керамической плитки

Строительные смеси для бассейнов



Мозаика

Мастерская
Арт-Studio

г. Новосибирск,
ул. Рельсовая, 9,
(М. Гагаринская)
тел. (383) 375-30-51
+7-913-955-9335
master-art@list.ru


Оборудование для соревнований в бассейнах

Оборудование для соревнований в бассейнах”

  • Указатели поворота для плавания на спине
  • Мачты для указателей фальстарта
  • Анкерное крепление с болтами
  • Наклонное анкерное крепление
  • Горизонтальное анкерное крепление
  • Натяжное устройство
  • Натяжное устройство для разделительных дорожек
  • Крюк для разделительных дорожек
  • Стойка для крепления разделительных дорожек
  • Чашки анкерного крепления для дорожки с выдвижным крюком
  • Чашки анкерного крепления для разделительной дорожки
  • Стартовые тумбы “BCN 03”
  • Стартовая тумба
  • Разделитель дорожек. Модель “МОСКВА”
  • Водное поло
  • Прыжковая доска “MAXIFLEX”
  • Прыжковые доски “Dynamic”
  • Прыжковые доски “Dynamic”

Указатели поворота для плавания на спине

Мачты указателей поворота.
Выполнены в виде четырех стоек из полированной нержавеющей стали AISI-316 высотой 1,8 м.
Анкерная крепежная арматура не прилагается.

Оборудование для соревнований в бассейнах   

Тип Артикул Цена,Є
Для бассейна шириной до 21 м - труба Д 43 мм (для установки в анкеры 40570 (4 шт.) или 40571 (4 шт.) 19952 726
Для бассейна шириной более 21 м - труба Д 48 мм (для установки в анкеры 40566 (4 шт.) или 40567 (4 шт.) 19953 865

 Шнур с флажками для поворота

Артикул

Цена, €

19955

38

Мачты для указателей фальстарта

Выполнены в виде двух стоек из полированной нержавеющей стали AISI-316 высотой 1,8 м..
Анкерная крепежная арматура не прилагается.

Оборудование для соревнований в бассейнах   

Тип

Артикул Цена,Є
Для бассейна шириной до 21 м - труба Д 43 мм (для установки в анкеры 40570 (2 шт.) или 40571 (2 шт.) 19950 510
Для бассейна шириной более 21 м - труба Д 48 мм (для установки в анкеры 40566 (2 шт.) или 40567 (2 шт.) 19951 570

 Шнур с поплавками фальстарта

Артикул

Цена, €

19954

23

 

 

Анкерное крепление с болтами

Изготовлено из полированной нержавеющей стали AISI-316.
Используется для монтажа прыжковых тумб.

Оборудование для соревнований в бассейнах   

Тип Артикул Цена,Є
Для труб диаметром 43 мм 40274 201
Для труб диаметром 48 мм 40277 201

Наклонное анкерное крепление

Изготовлено из полированной нержавеющей стали AISI-316.

Оборудование для соревнований в бассейнах   

Тип Артикул Цена,Є
Для труб диаметром 43 мм 40571 149
Для труб диаметром 48 мм 40567 156

Горизонтальное анкерное крепление

Изготовлено из полированной нержавеющей стали AISI-316.

Оборудование для соревнований в бассейнах   

Тип Артикул Цена,Є
Для труб диаметром 43 мм 40570 149
Для труб диаметром 48 мм 40566 156

Натяжное устройство

Изготовлено из полированной нержавеющей стали AISI-316.

Оборудование для соревнований в бассейнах   

Артикул Цена,Є
40572 70

Натяжное устройство для разделительных дорожек

Изготовлен из хромированной латуни.

Оборудование для соревнований в бассейнах   

Артикул Цена,Є
40512 192

Крюк для разделительных дорожек

Изготовлены из полированной нержавеющей стали AISI-304.

Оборудование для соревнований в бассейнах   

Артикул Цена,Є
40510 18

Стойка для крепления разделительных дорожек

Изготовлены из полированной нержавеющей стали AISI-316.
Для установки в анкеры 40570, 40571.

Оборудование для соревнований в бассейнах   

Артикул Цена,Є
40568 72

Чашки анкерного крепления для дорожки с выдвижным крюком

Изготовлены из полированной нержавеющей стали AISI-316.

Оборудование для соревнований в бассейнах    Оборудование для соревнований в бассейнах   

Тип Артикул Цена,Є
Для бетонных бассейнов 40503 110
Для пленочных бассейнов 40504 144

Чашки анкерного крепления для разделительной дорожки

Изготовлены из полированной нержавеющей стали AISI-316.

Оборудование для соревнований в бассейнах    Оборудование для соревнований в бассейнах   

Тип Артикул Цена,Є
Для бетонных бассейнов 40505 85
Для пленочных бассейнов 40502 117

Стартовые тумбы “BCN 03”

Стартовые тумбы для соревнований по плаванию.
Изготовлены из полированной нержавеющей стали AISI-316.
Анкерная крепежная арматура прилагается.

Оборудование для соревнований в бассейнах    Оборудование для соревнований в бассейнах   

Тип Артикул Цена,Є
Без рукоятей 28760 3200
С рукоятиями 28761 5650

Стартовая тумба

Cтартовая тумба для соревнований по плаванию.
Изготовлены из полированной нержавеющей стали AISI-304.
Анкерная крепежная арматура прилагается.

Оборудование для соревнований в бассейнах    Оборудование для соревнований в бассейнах   

Высота Артикул Цена,Є
400 мм 27578 1200

Стартовые тумбы

Съемные cтартовые тумбы для соревнований по плаванию.
Изготовлены из полированной нержавеющей стали AISI-304.
Анкерная крепежная арматура (арт. 40274, 2 шт. на одну тумбу) заказывается отдельно.

Оборудование для соревнований в бассейнах    Оборудование для соревнований в бассейнах    Оборудование для соревнований в бассейнах   

Высота Артикул Цена,Є
700 мм PD010146 1250
400 мм PD010147 1140

Стартовые тумбы

Стартовые тумбы для соревнований по плаванию.
Изготовлены из полированной нержавеющей стали AISI-316.
Анкерная крепежная арматура прилагается.

Оборудование для соревнований в бассейнах    Оборудование для соревнований в бассейнах    Оборудование для соревнований в бассейнах   

Высота Артикул Цена,Є
700 мм PD010144 2650
400 мм PD010145 2060

Разделитель дорожек. Модель “МОСКВА”

Поставляется в собранном виде - с поплавками на шнуре и с крюком.

Оборудование для соревнований в бассейнах    Оборудование для соревнований в бассейнах   

Артикул L A Цена,Є
40548 25 м 27 м 1120

Дорожка разделительная для бассейна 25м, фурнитура из нерж. стали, фал 26м

Выполнены в соответствии с европейскими стандартами из полиэтилена высокого давления, с использованием импортного красителя высокого качества. Дорожки комплектуются нержавеющей фурнитурой: талрепом-натяжителем, карабином, зажимами, а также полиамидным фалом д.8 мм или тросом из нержавеющей стали д. 4 мм.

Комплектующие

(Волногасители d 105 мм, поплавки, фал 26 м, талреп, карабин, зажимы для фала).

Фурнитура: нержавеющая сталь.

Под заказ возможна поставка разделительных дорожек с волногасителями диаметром 125мм.

Цены

Дорожка разделительная для бассейна 25м, фурнитура и трос из нерж. стали, трос (4мм)-26м

Выполнены в соответствии с европейскими стандартами из полиэтилена высокого давления, с использованием импортного красителя высокого качества. Дорожки комплектуются нержавеющей фурнитурой: талрепом-натяжителем, карабином, зажимами, а также полиамидным фалом д.8 мм или тросом из нержавеющей стали д. 4 мм.

Комплектующие

(Волногасители d 105 мм, поплавки, трос (4мм) – 26 м, талреп, карабин, коуши, зажимы для троса).

Фурнитура и трос: нержавеющая сталь.

Под заказ возможна поставка разделительных дорожек с волногасителями диаметром 125мм.

Цены

Дорожка разделительная для бассейна 50м, фурнитура из нерж. стали, фал 51м

Выполнены в соответствии с европейскими стандартами из полиэтилена высокого давления, с использованием импортного красителя высокого качества. Дорожки комплектуются нержавеющей фурнитурой: талрепом-натяжителем, карабином, зажимами, а также полиамидным фалом д.8 мм или тросом из нержавеющей стали д. 4 мм.

Комплектующие

(Волногасители d 105 мм, поплавки, фал 51 м, талреп, карабин, зажимы для фала).

Фурнитура: нержавеющая сталь.

Под заказ возможна поставка разделительных дорожек с волногасителями диаметром 125мм.

Цены

Дорожка разделительная для бассейна 50м, фурнитура и трос из нерж. стали, трос (4мм)-51м

Выполнены в соответствии с европейскими стандартами из полиэтилена высокого давления, с использованием импортного красителя высокого качества. Дорожки комплектуются нержавеющей фурнитурой: талрепом-натяжителем, карабином, зажимами, а также полиамидным фалом д.8 мм или тросом из нержавеющей стали д. 4 мм.

Комплектующие

(Волногасители d 105 мм, поплавки, трос (4мм) – 51 м, талреп, карабин, коуши, зажимы для троса).

Фурнитура и трос: нержавеющая сталь.

Под заказ возможна поставка разделительных дорожек с волногасителями диаметром 125мм.

Цены

Анекрное крепление в борт бассейна (гильза, крюк из нерж. стали)

Водное поло

Комплект водного поло для соревнований любых категорий.
В комплект входит: ворота - 2 шт

Оборудование для соревнований в бассейнах    Оборудование для соревнований в бассейнах   

Прыжковая доска “MAXIFLEX”

Регулируемый по длине трамплин для соревнований любых категорий.

Оборудование для соревнований в бассейнах   

Тип Артикул Цена,Є
Доска 13400 уточняйте
Регулируемое основание с крепежом 13420 уточняйте

Прыжковые доски “Dynamic”

Анкерная крепежная арматура прилагается.
Вес человека не должен превышать 120 кг

Оборудование для соревнований в бассейнах    Оборудование для соревнований в бассейнах   

Тип Артикул Цена,Є
Доска TR031392B 500
Основание TR031392A  300

Прыжковые доски “Dynamic”

Анкерная крепежная арматура прилагается

Оборудование для соревнований в бассейнах    Оборудование для соревнований в бассейнах   

Тип Артикул Цена,Є
Длина 2 м, ширина 0,6 м TR183199 4100
Мастерская Арт-Studio   Новосибирск, ул. Рельсовая, 9, тел. (383) 375-30-51   e-mail:master-art@list.ru
Недвижимость, Новостройки Новосибирска Строительство в Сибири. Недвижимость